O2.5UM-NRG
Utility Multi-Deck Cross-Merchandiser
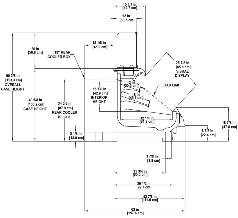
Hillphoenix O2.5UM-NRG Multi-Deck and the ON2.5UM-NRG Narrow Version, Medium-Temperature Merchandiser for produce, dairy, deli, meat and seafood retail merchandising. Versatile merchandising, multiple configurations and fronts available in several lengths.
Hillphoenix O2.5UM-NRG Multi-Deck and the ON2.5UM-NRG Narrow Version, Medium-Temperature Merchandiser for produce, dairy, deli, meat and seafood retail merchandising. Versatile merchandising, multiple configurations and fronts available in several lengths.
Please consult Hillphoenix Engineering Reference Manual for dimensions, plan views and technical specifications. Specifications subject to change without notice. Designed for optimal performance in store environments where temperature and humidity do not exceed 75°F and 55% R.H. Certified to UL 471, ANSI/NSF Standard 2,7,51 and CAN/CSA C22.2.

Utility Multi-Deck Cross-Merchandiser
Hillphoenix O2.5UM-NRG Multi-Deck and the ON2.5UM-NRG Narrow Version, Medium-Temperature Merchandiser for produce, dairy, deli, meat and seafood retail merchandising. Versatile merchandising, multiple configurations and fronts available in several lengths.
Hillphoenix O2.5UM-NRG Multi-Deck and the ON2.5UM-NRG Narrow Version, Medium-Temperature Merchandiser for produce, dairy, deli, meat and seafood retail merchandising. Versatile merchandising, multiple configurations and fronts available in several lengths.
Features & Benefits
- Synerg-E Technology with NRGcoil™ ensures uniform case performance and lower average product temperatures with optimum energy efficiency.
- Bottom-mounted NRGcoil and lift-up fan plenum for ease of maintenance.
- Seamless tank liner provides positive drain runoff and enhances sanitation.
- Standard Off Cycling defrost for cost-effective operation.
- Removable castors for easy merchandiser unloading, movement and installation.
Available Options
- Available lengths: 4’, 6’, 8’, 12’.
- Multiple front styles available.
- Multiple front sill heights available.
- Available shelf sizes: 10”, 12”, 14”, 16”, 18”, 20”.
- Custom Colors, Finishes, and Textures available.
- Choice of ends including full view or solid with variety of interior finishes.
- Available light options include: canopy, shelf, third row, and nose.
- Available in traditional direct expansion as well as secondary coolant versions.
- Narrow depth version available as ON2.5UM, taller versions available starting with O3UM and shorter version available starting with O2UM.
- Exclusive Clearvoyant® LED Lighting System.
Attributes
- Alternate Heights: OM-NRG, O2UM-NRG, O3UM-NRG, O4UM-NRG, O5UM-NRG
- Case Depth / Footprint: 43 1/4"
- Case Height Standard: 50"
- Case Length: 4', 6', 8' & 12'
- Case Temp: Medium-Temp
- Case Type: Remote, Self-Service, End Cap
- Department: Bakery, Beverage, Dairy, Deli, Meat & Seafood
- Interior Depth: 32 1/4"
- Interior Height: 20 7/8"
- Other Models: OM-NRG, O2UM-NRG, O3UM-NRG, O4UM-NRG, O5UM-NRG
- Product Type: Display Case
- Remote / Self-Contained: Remote
- Retail Types: Food Service, Mass Merchandise, Supermarket, Small Format, Membership & Warehouse, Urban Format
Related Products
OM-NRG
Hillphoenix OM-NRG and OMM-NRG Single-Deck, Deli, Meat and Seafood Display Case. The perfect, self-service merchandiser for deli, meat and seafood.…
O3UM-NRG
Hillphoenix O3UM-NRG Multi-Deck, Utility, Self-Service Merchandiser. Energy-efficient, versatile merchandiser can be customized for multiple food merchandising applications. Designed to merchandise…

